Zwischen bäuerlicher Tradition und touristischer Moderne

Die Dissertation unseres Dozenten und Forschers Stefan Kunz wurde soeben veröffentlicht. Er beschäftigt sich darin mit der engen Verbindung von Landschaft und Haus im Leben der Menschen in der ländlichen Schweiz und untersucht die sich wandelnden Alltagspraktiken und Deutungsmuster, baulichen und klimatischen Veränderungen sowie umfangreichen wirtschaftlichen Transformationen.

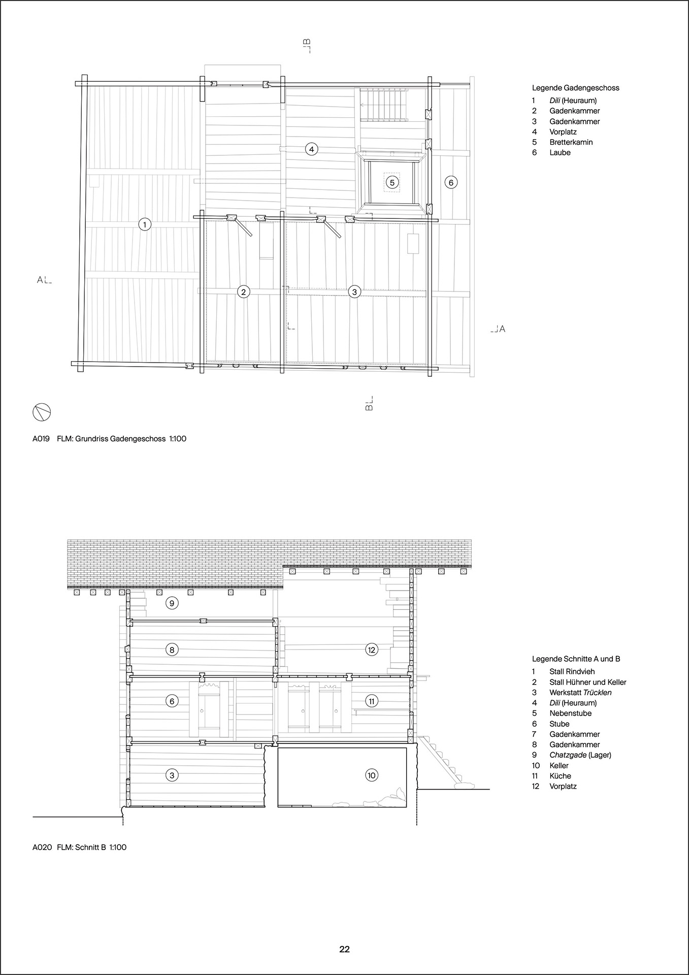
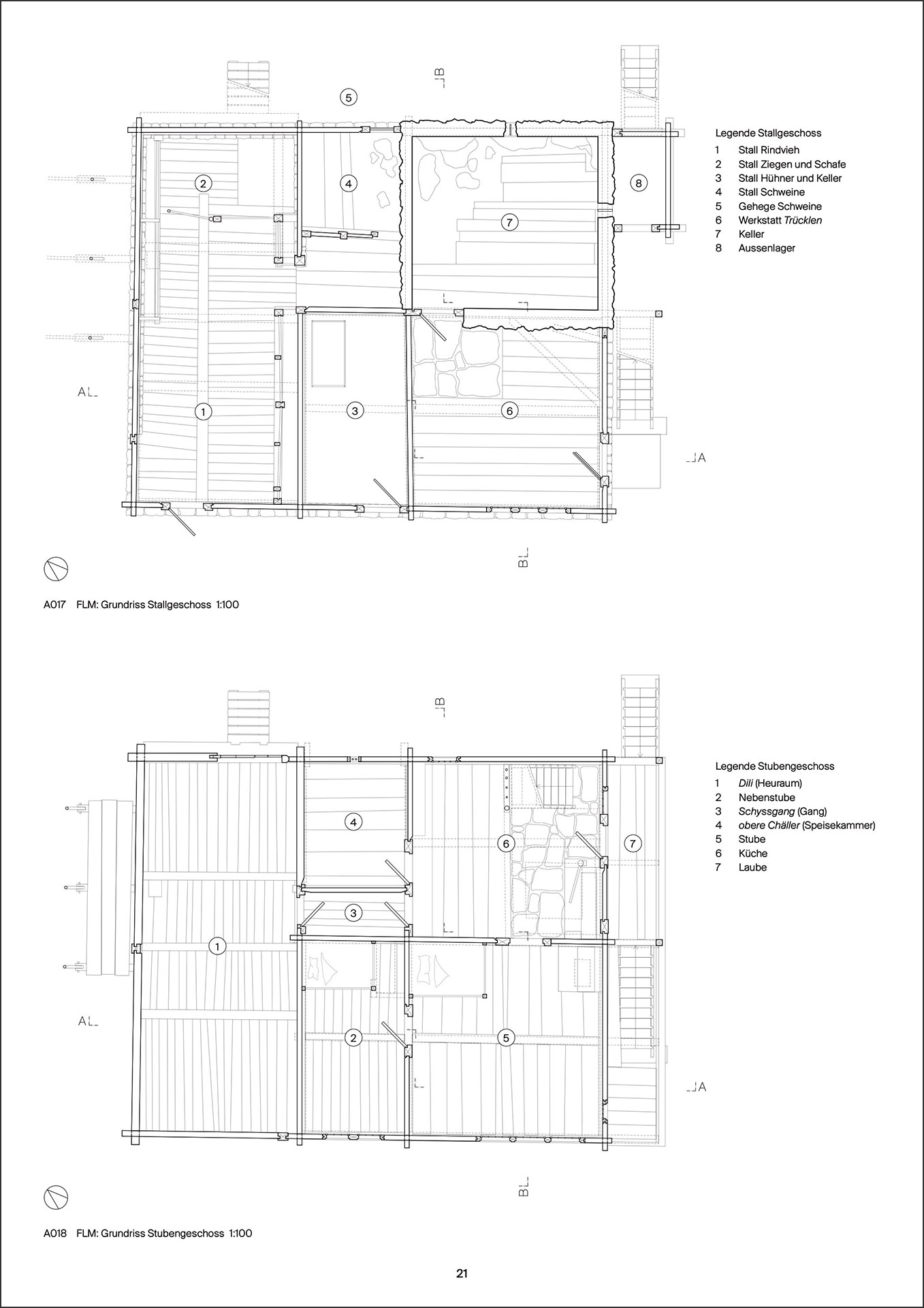
Stefan Kunz schildert diese vielfältigen Prozesse anhand der Landschaft in Adelboden. Er zeichnet die Lebenswelten der Menschen vor Ort in unterschiedlichen Zeiträumen nach, die vom Spannungsfeld zwischen bäuerlicher Tradition und touristischer Moderne geprägt waren. Die Kontextgeschichte der Landschaft setzt er dabei in Beziehung zu den Fokusgeschichten der Bewohnenden des Hauses, welches 1698 in Adelboden errichtet und 1968 ins Freilichtmuseum Ballenberg überführt wurde. Mithilfe eines raumtheoretischen Ansatzes untersucht er die Transformation des physischen, des prozessualen und des symbolischen Raums über eine Dauer von 270 Jahren. Dies ermöglicht vertiefte Einblicke in den historischen Diskurs und den Bedeutungswandel von Landschaft und Haus im alpinen Raum.

Forschungskontext «Wohnen, Bauen und Wirtschaften in der ländlichen Schweiz»

Die Dissertation stand im Kontext des Forschungsprojektes «Mensch & Haus – Wohnen, Bauen und Wirtschaften in der ländlichen Schweiz». Das vom Schweizerischen Nationalfonds (SNF) finanzierte Projekt mit einer Laufzeit von 2020 bis 2024 war eine Kooperation zwischen der Universität Basel, der Berner Fachhochschule, dem Freilichtmuseum Ballenberg und weiteren Partnerorganisationen aus unterschiedlichen Fachgebieten. Das Projekt fragte mit einem interdisziplinär ausgerichteten Ansatz nach den Wechselwirkungen von Mensch, materieller Kultur, Natur und Lebensweise und verknüpft bauhistorische, sozial- und wirtschaftsgeschichtliche, kulturanthropologische und biographische Ansätze. Im Fokus der Untersuchung standen die Geschichten ausgewählter Häuser des Freilichtmuseums Ballenberg und der Menschen, die in ihnen lebten. Die Forschung befasste sich sowohl mit den wirtschaftlichen, sozialen und kulturellen Wechselwirkungen zwischen den Gebäuden und ihren Bewohnenden, als auch mit den Einflüssen übergeordneter historischer Transformationsprozesse. Haus und Mensch sind dabei Zeitzeugen einer ländlichen Schweiz, deren Geschichtsschreibung von teils stereotypen Vorstellungen durchzogen ist, die gerade in der Bauernhausforschung der letzten Jahrzehnte schrittweise differenzierter und entromantisiert betrachtet wurden. Hierzu leistet auch das SNF-Projekt einen entsprechenden Beitrag. Abhängig vom Haus und seinem Kontext bis zur Translozierung auf den Ballenberg nahmen die Forschenden bestimmte Zeiträume und Themen in den Blick.

Bedeutungswandel von Haus und Landschaft verstehen

Das Forschungsinteresse von Stefan Kunz gründet auf seinem beruflichen Hintergrund als Architekt und seinen Erfahrungen in diversen angewandten Forschungsprojekten im Bereich der Raumentwicklung. Diese zeichnet eine inter- respektive transdisziplinäre und integrale Betrachtung von Bauwerken, Siedlungen und Landschaften aus. Dabei kam die theoretische Reflexion meist ebenso zu kurz wie eine fundierte historische Betrachtung der untersuchten Objekte und Gebiete. Die Theorie bildet den notwendigen Rahmen für eine kontinuierliche Weiterentwicklung der Forschung und für den wissenschaftlichen Diskurs. Das Wissen um den historischen Werdegang ist wiederum wichtig für die Vermittlung der Bedeutung baukultureller und landschaftlicher Elemente, die prägend sind für eine Identifikation der Menschen mit ihrem Lebensraum. Hierbei sind die Veränderungen natürlicher und gebauter Strukturen ebenso von Interesse wie die Transformation von Praktiken oder symbolischen Bedeutungszuschreibungen. Diese Aspekte stehen im Zuge komplexer Prozesse in enger Wechselwirkung zueinander. Diese Wechselwirkungen zu verstehen, kann eine qualitätsorientierte und reflektierte Raumentwicklung unterstützen. Gerade aufgrund der schnell voranschreitenden baulichen Entwicklungen ist dies besonders relevant. Schliesslich sind unsere Orts- und Landschaftsbilder ein generationenübergreifendes Produkt vieler Akteur:innen aus unterschiedlichen Zeiten. Während sich heutige Bedürfnisse und Wertvorstellungen im zeitgenössischen Wohnen, Bauen und Wirtschaften abbilden, widerspiegeln sich diejenigen vorangehender Generationen im baukulturellen und landschaftlichen Erbe. Eine der Herausforderungen der Raumentwicklung besteht darin, ausgehend von den vielfältigen Ansprüchen zahlreicher Stakeholder und dem baulichen Vermächtnis unserer Vorfahren, lebenswerte und identitätsstiftende Lebensräume zu schaffen. Hierbei spielen die Bedeutungen, die wir Bauwerken, Siedlungen und Landschaft zuschreiben, eine wichtige Rolle. Diese Bedeutungszuschreibungen sind sowohl subjektiv als auch kollektiv geprägt. Die damit zusammenhängenden Wahrnehmungs- und Deutungsmuster haben sich aufgrund kultureller Transformationsprozesse laufend verändert. Bestimmte historische Zuschreibungen konnten sich jedoch bis heute halten. Den Bedeutungswandel zu verstehen, kann dabei helfen, heutige Sichtweisen besser einzuordnen. Dies ist insofern relevant, als die genannten Wahrnehmungs- und Deutungsmuster handlungswirksam sind und dadurch direkten Einfluss auf aktuelle Entwicklungen des Raums haben.

Von der Forschung in die Praxis

Die Dissertation ermöglichte es, die beschriebenen Lücken aus den angewandten Forschungsprojekten hinsichtlich einer theoretischen und historischen Betrachtung zu behandeln und die Vertiefung des Bedeutungswandels anhand einer spezifischen Landschaft und eines konkreten Hauses zu thematisieren. Dadurch entstehen Anknüpfungspunkte für weitere Forschungen und einen Wissenstransfer in die Praxis. Stefan Kunz interessieren dabei unter anderem die Entwicklung und Etablierung einer integralen Sichtweise auf Bauwerke, Siedlungen und Landschaften im tendenziell fragmentierten und disziplinär geprägten wissenschaftlichen Diskurs, der sich seit einigen Jahren vermehrt interdisziplinär ausrichtet. Dazu braucht es theoretische Modelle, die für unterschiedliche Disziplinen anschlussfähig sind. Eine Überführung der entwickelten Modelle aus der Wissenschaft in die Praxis zur Unterstützung einer ganzheitlichen Raumentwicklung weist grosses Potenzial auf. Dadurch kann die Forschung eine Wirkung ausserhalb der Wissensproduktion erzielen. Ein weiterer Aspekt ist die Vermittlung der inhaltlichen Ergebnisse. Durch die Kooperation mit dem Freilichtmuseum Ballenberg gibt es hierzu eine Plattform mit grosser Reichweite. In einem Folgeprojekt wird untersucht, wie historische Transformationsprozesse mittels hybrider Vermittlungs- und Dialogformaten mit Mixed Reality und Künstlicher Intelligenz erfahrbar gemacht werden können. Darauf aufbauend sollen aktuelle gesellschaftliche Herausforderungen interaktiv reflektiert werden.

Auszüge aus der Dissertation

Links

Das gedruckte Buch kann beim Verlag vdf bestellt werden.
Die Dissertation ist auch als open access digital verfügbar.
Artikel in der Zeitung Frutigländer «Ein Adelbodner Bauernhaus erzählt die Geschichte einer Region», 24. April 2026

Weitere Stories

Weitere Stories