Spiel und Domizil

Im Herbstsemester 2025 widmeten sich die Studierenden des Bachelor Intermediate im Projektmodul exemplarisch vier Kirchenbauten in der Stadt Luzern. Ausgehend von einer umfassenden Analyse entwickelten sie Fragestellungen, die sich aus dem spezifischen Kontext ergeben und untersuchten die Transformationspotenziale dieser Gebäude im Hinblick auf eine Umnutzung zu Wohnraum. Dabei analysierten sie konstruktive Voraussetzungen, erforschten bestehende Raumqualitäten und entwickelten Entwurfsstrategien für die Umnutzung. Yannis Regamey beschäftigte sich mit der Kirche St. Maria am Franziskanerplatz.

Im Video erklärt Yannis Regamey seinen Entwurf.

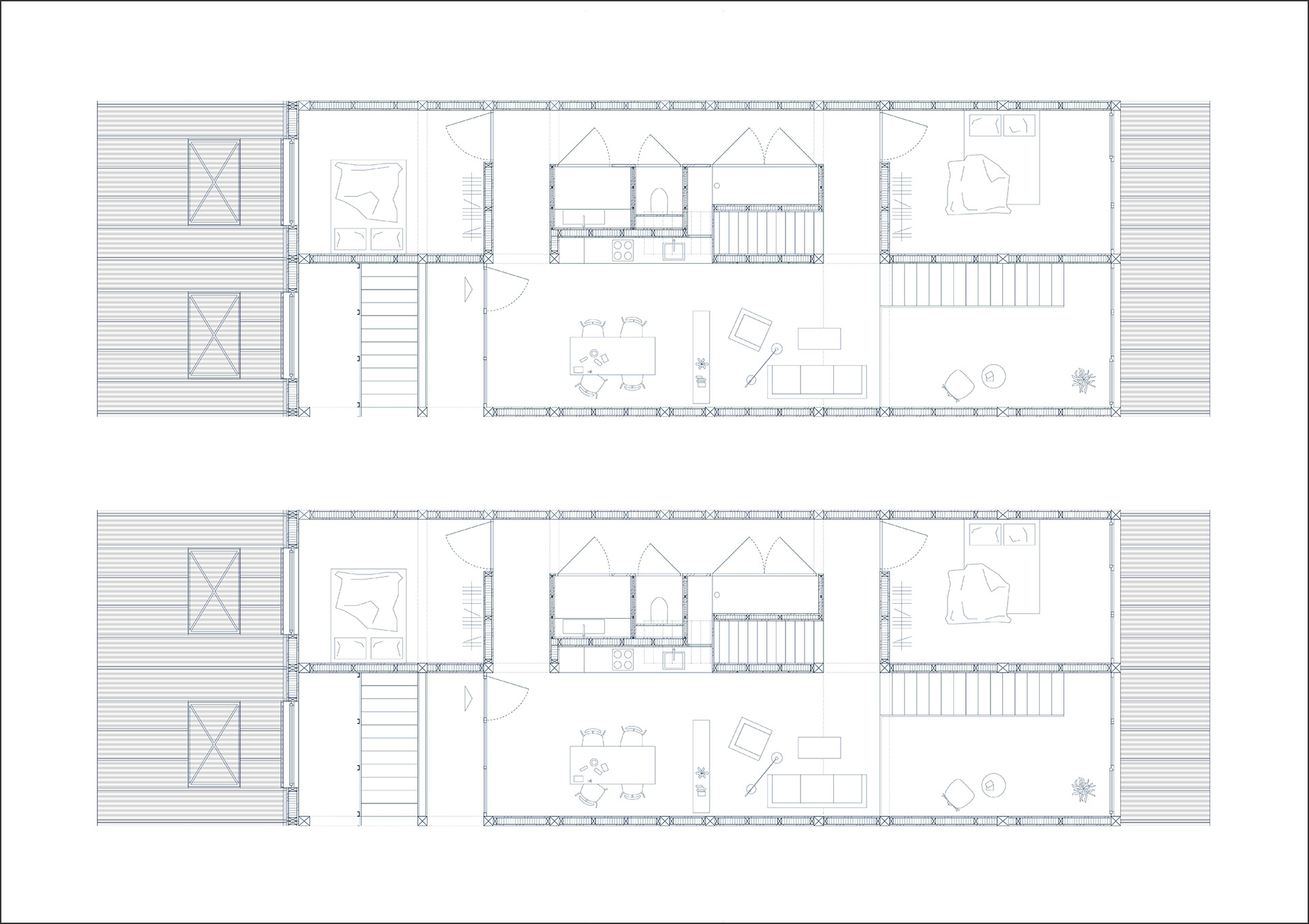
Zu seinem Projekt schreibt er: «Der Entwurf reagiert auf das gescheiterte Projekt eines neuen Luzerner Stadttheaters sowie auf den Bedeutungsverlust sakraler Räume im urbanen Kontext. Die St. Maria Kirche wird zu einem hybriden Ort aus Theater, Öffentlichkeit und Wohnen transformiert. Die grosszügigen Raumhöhen der Basilika werden dabei nicht horizontal geteilt, sondern als zusammenhängende räumliche Qualität erhalten und für ein alternatives, frei bespielbares Theater genutzt. Der Sakralraum wird als offener Kulturraum neu interpretiert. Eine flexibel nutzbare Bühne ermöglicht unterschiedliche Formate von Theater bis Performance. Der Chor wird als öffentliche Bar aktiviert und bildet zusammen mit dem Theater eine durchgehende öffentliche Nutzung, die den Franziskanerplatz räumlich in das Gebäude hineinzieht und als niederschwelliger Treffpunkt neu belebt.

Über der Basilika entstehen Wohnungen als eigenständige Schicht. Die besondere Wohnform ergibt sich aus der vertikalen Überlagerung von Alltag und Kultur, während der sakrale Raum in seiner vollen Höhe erlebbar bleibt. Die Erschliessung erfolgt über einen inneren Laubengang oberhalb des nördlichen Seitenschiffs, der als belebte Quartierstrasse mit Aufenthaltsmöglichkeiten gedacht ist. Die Wohnungen sind als Zweispänner organisiert und folgen mit schottenartigen Wänden dem Rhythmus der Basilikabögen. Wohn- und Schlafzonen liegen jeweils auf gegenüberliegenden Seiten der Schotten, alle Zimmer sind gleich gross. Küche, Bad und Treppe sind in einer kompakten Servicezone gebündelt, die Wohnungen sind als Maisonettes ausgebildet und reichen eine Ebene tiefer in das südliche Seitenschiff. Das Dach wird neu gestaltet und als leichte Holzbaukonstruktion ausgeführt. Die zeitgenössische Form setzt sich bewusst vom historischen Bestand ab, respektiert jedoch dessen Proportionen und Volumetrie. Im Inneren reagiert die Materialität des Leichtbaus mit Terrazzoböden und Lehmputzwänden auf den massiven Bestand und verleiht den Wohnräumen eine ruhige, angemessene Schwere.

Die gemeinschaftliche Dachterrasse bildet den Abschluss des Wohnens und dient als Aufenthalts- und Aussichtsort. Sie stärkt die soziale Interaktion der Bewohnenden und ergänzt das Projekt um einen gemeinschaftlich genutzten, produktiven Freiraum.»

Modul: Lebensformen, HS25 Lehrteam: Didier Balissat, Alessandro Bosshard, Nina Cattaneo, Christoph Flury, Kasia Jackowska und Prof. Angelika Juppien (MV) Assistenz: Julian Holz, Sylwia Jezewska

Weitere Stories

Weitere Stories