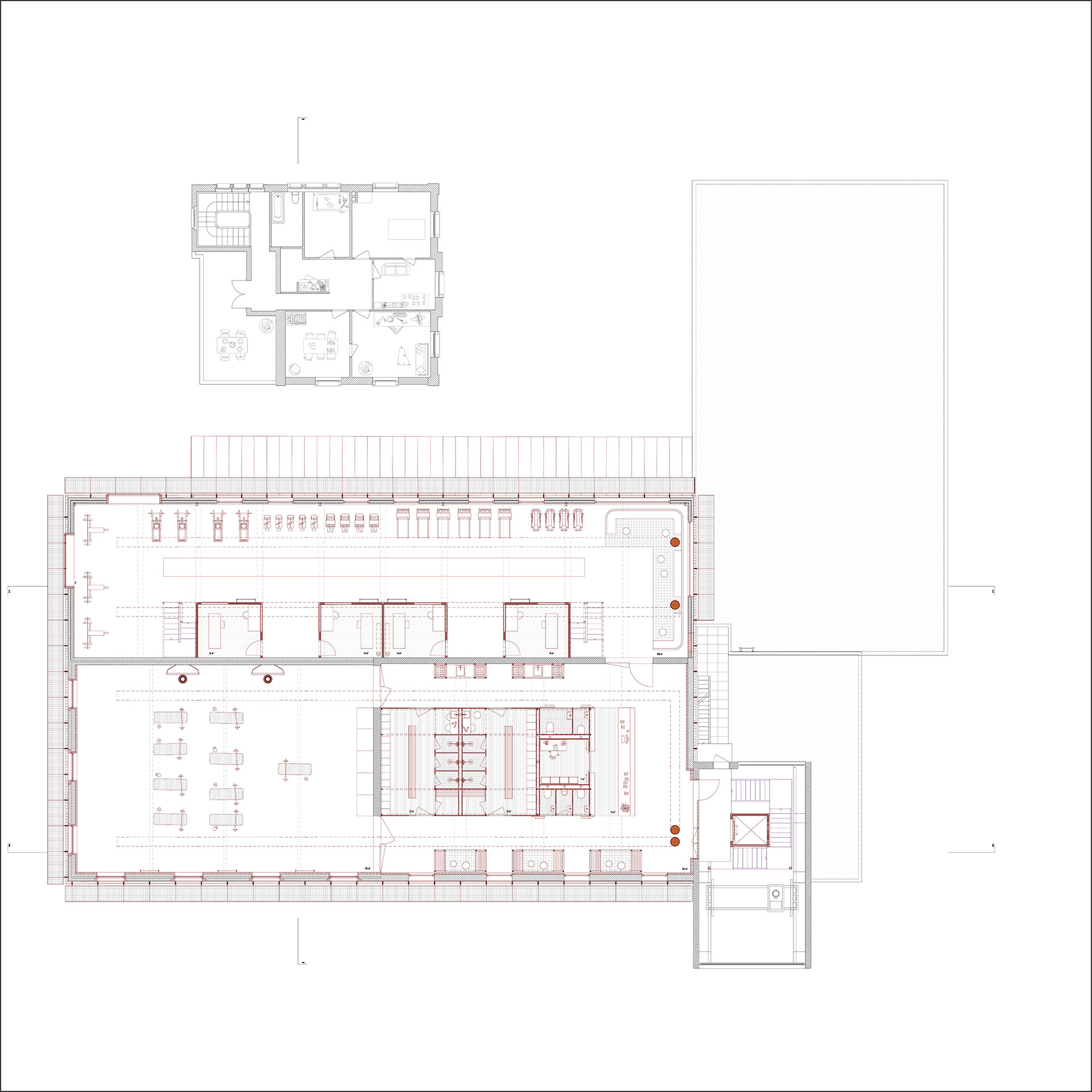
Schwimmbad im ehemaligen Unterwerk

Im interdisziplinären Modul «Bestand» auf Advanced Stufe bearbeiten Studierende aus den Bachelor Studiengängen Architektur, Innenarchitektur, Digital Construction, Bauingenieurwesen und Gebäudetechnik gemeinsam eine Aufgabe. Im Herbstsemester 2025 ging es darum, das ehemalige Unterwerk in eine Schulschwimmanlage für Kinder der Stadt Luzern zu transformieren. Im Mittelpunkt stand dabei ein nachhaltiger und ressourcenschonender Umgang mit dem Bestand, der gemeinsam im interdisziplinären Team entwickelt wurde. Zwei Entwürfe werden hier im Detail präsentiert.

Aufgabenstellung

Im vorausgegangenen Modul «Interdisziplinärer Workshop Bau» wurde bereits eine interdisziplinär abgestimmte Strategie definiert. Im Modul «Bestand» wurde diese anschliessend kritisch hinterfragt und auf Basis der Rahmenbedingungen und Potenziale des Bestands zu einem interdisziplinären Gruppenprojekt der Fachrichtungen Tragwerk, Gebäudetechnik, Digital Construction, Innenarchitektur und Architektur weiterentwickelt. Die Aufgabe wurde von einem interdisziplinären Team von Dozierenden aus allen Fachbereichen begleitet.

Begehung vor Ort im Unterwerk

Projekt von Elia Bernhart, Mario Hürlimann, Sereina Müller und Sandro Kamer

Die Architekturstudenten Elia Bernhart und Mario Hürlimann erklären ihren Entwurf.

Projekt «Neuwerk» von Tibor Andres, Carlo Nosetti, Orhan Topalan, Sabrina Müller und Tim Schmid

Tibor Andres und Carlo Nosetti präsentieren ihr Projekt.
Fassade Nord
Fassade Süd
Fassade West
Fassade Ost
Tibor Andres und Carlo Nosetti über die Herausforderungen und Vorteile von interdisziplinären Projekten.

Schlusskritik des Moduls

Modul: Bestand, HS25 Lehrteam: Oliver Dufner, Boris Gusic (MV), Marianne Meister, Gunter Klix, Dominique Knüsel, Matthias Winter Assistenz: Pascal Hofer, Nina Hug, Leopold Strobl

Weitere Stories

Weitere Stories