Imperfect Architecture

Im Masterstudiengang Architektur stand das Herbstsemester 2025 ganz im Zeichen des Jahresthemas «Permanent vacation», bei dem lokale Ausprägungen der Vergangenheit und Gegenwart des globalen Tourismus untersucht wurden. Im Atelier von Bessire/Winter beschäftigten sich die Studierenden mit den Grand Hotels von Luzern. Durch kleine Eingriffe transformierten Jasmin Tietianiec und Silje Aks einen Teil des Hotels Palace.

Die Grand Hotels von Luzern sind der Inbegriff eines frivolen, extravaganten Tourismus, der das Image der Stadt massgeblich prägt. Während sie kontinuierlich florieren, beruht ihre unwirkliche Schönheit auf einer finanziellen Realität, die es zulässt, dass fast die Hälfte der Zimmer das ganze Jahr über leer steht, wodurch eine immense urbane Energie unerschlossen bleibt. Gemeinsam mit der Underground-Jugendkultur Luzerns, die als unberechenbarer Motor des öffentlichen Raums und des städtischen Lebens fungiert, versuchten die Studierenden, die Pracht dieser großen Gebäude zu hinterfragen, indem sie die Kreisläufe der kosmopolitischen Grand Hotels mit den Bewegungen hyperlokaler Akteure und Organisationen kreuzten.

Mittels einer «Imperfect Architecture» wurde ihre perfekte und endliche räumliche Komposition in undurchsichtige Organismen verwandelt, in deren Chiaroscuro sich die unendliche Geschichte der (Under)Grand Hotels entfaltet.

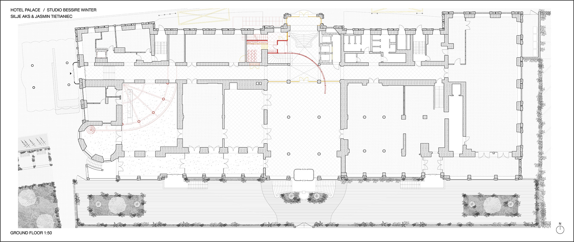
Jasmin Tietianiec und Silje Aks schreiben über ihr Projekt: «Ausgehend von historischen und räumlichen Erkenntnissen innerhalb des Hotels Palace untersucht das Projekt, wie Spuren des vergangenen gesellschaftlichen Lebens neu interpretiert und in ein neues Programm übersetzt werden können. Parallel dazu greift das Projekt auf die Haltung der Aktivistenorganisation Bruchscetta als fiktiver Auftraggeber und zukünftiger Nutzer zurück. Deren Vorgehensweise – durch Besetzung, Anpassungsfähigkeit und die Aneignung vernachlässigter Räume – wurde zu einem Leitprinzip für dieses Projekt.

Auf einer zweiten Ebene zielt das Projekt darauf ab, einen sozialen Puls wieder einzuführen, der neue Formen des öffentlichen Lebens innerhalb und neben der Hotelstruktur koexistieren lässt. Durch minimale Eingriffe und die Nutzung bereits vorhandener Räume besteht das Projekt aus wenigen architektonischen Elementen: einem reaktivierten Eingang, einem Barbereich im Zwischengeschoss, einer Treppe und einer Brücke. Das Projekt entfaltet sich als Abfolge von Fragmenten, die Einblicke gewähren, ohne sich auf einmal vollständig zu offenbaren, und eine neue soziale Ebene einführen, während das Hotel Palace weiterhin so funktionieren kann, wie es dies heute tut.»

Modul: Fokusprojekt HS25 Lehrteam: Céline Bessire, Matthias Winter Assistenz: João Moreira

Weitere Stories

Weitere Stories